Mandrin à raccourcir les vis
Cet outil d’origine horlogère s’appelle « Lanterne aux vis » (Lantern chuck). Il est destiné à la finition des pointes de vis, mais aussi à leur raccourcissement. Cet outil est adapté aux micro-vis utilisées en horlogerie.
En modélisme vapeur, la reprise de vis pour ajuster leur longueur est chose courante. On présente ici une version plus musclée et plus rustique de cet outil.
|
|
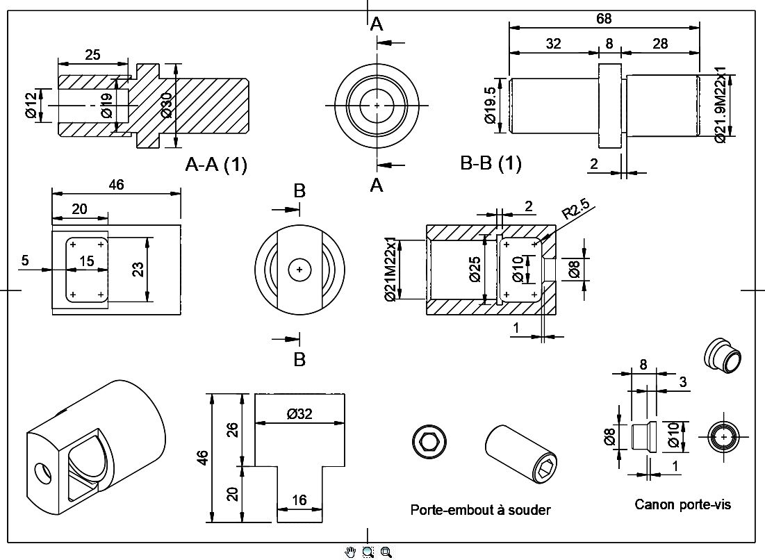
Lorsque le diamètre des vis augmente l’effort de coupe a tendance à entraîner la vis en rotation. Pour contrecarrer ce problème l’astuce proposée consiste à utiliser des embouts amovibles hexagonaux utilisés sur les visseuses. Le porte-embout avec l’empreinte hexagonale femelle est soudé à l’étain dans la partie mâle du mandrin. On peut aussi envisager un système anti-rotation de ce porte embout par rainure et vis.
Pour la pièce mâle et femelle il est recommandé d’utiliser un filetage à pas fin, car la plus faible inclinaison de l’hélice rend ce filetage moins sensible au dévissage sous vibrations.
lien vers fiche filetage FPe22
La vis est guidée par un canon de centrage et de maintien. On choisit du laiton afin de ne pas marquer le filetage de la vis. Ce canon est rapide à fabriquer sur mesure à chaque fois que nécessaire.
Le tenon de la partie mâle du mandrin dépendra de votre système de maintien de l’ébauche sur le tour. Dans l’exemple proposé il est prévu pour une prise sur pince ER32.
On aura tout bénéfice à fabriquer des outillages adaptés aux vis à traiter, par exemple l’un pour les vis allant de 1,6 à 2,5 mm de diamètre et le second de 3 à 6 mm. On a joint un exemple adapté aux vis de 3 à 6mm de diamètre. Dans le plan aucune cote n’a un caractère critique.
|
|
Plan :
|
